EXCLUSIVITÉ ET SEULEMENT DANS L'AGENCE SPiTi DE CHAUMES EN RETZ
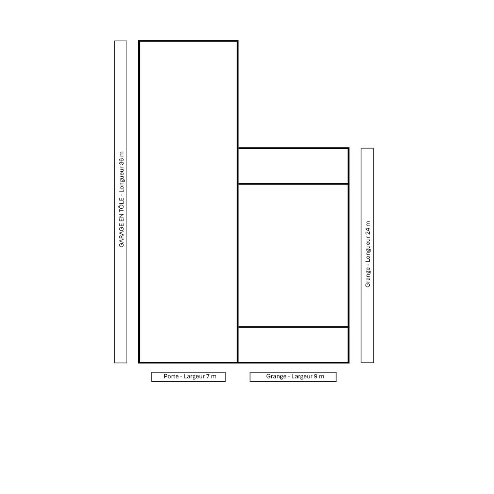
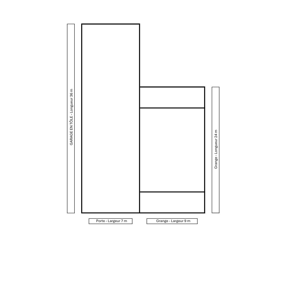
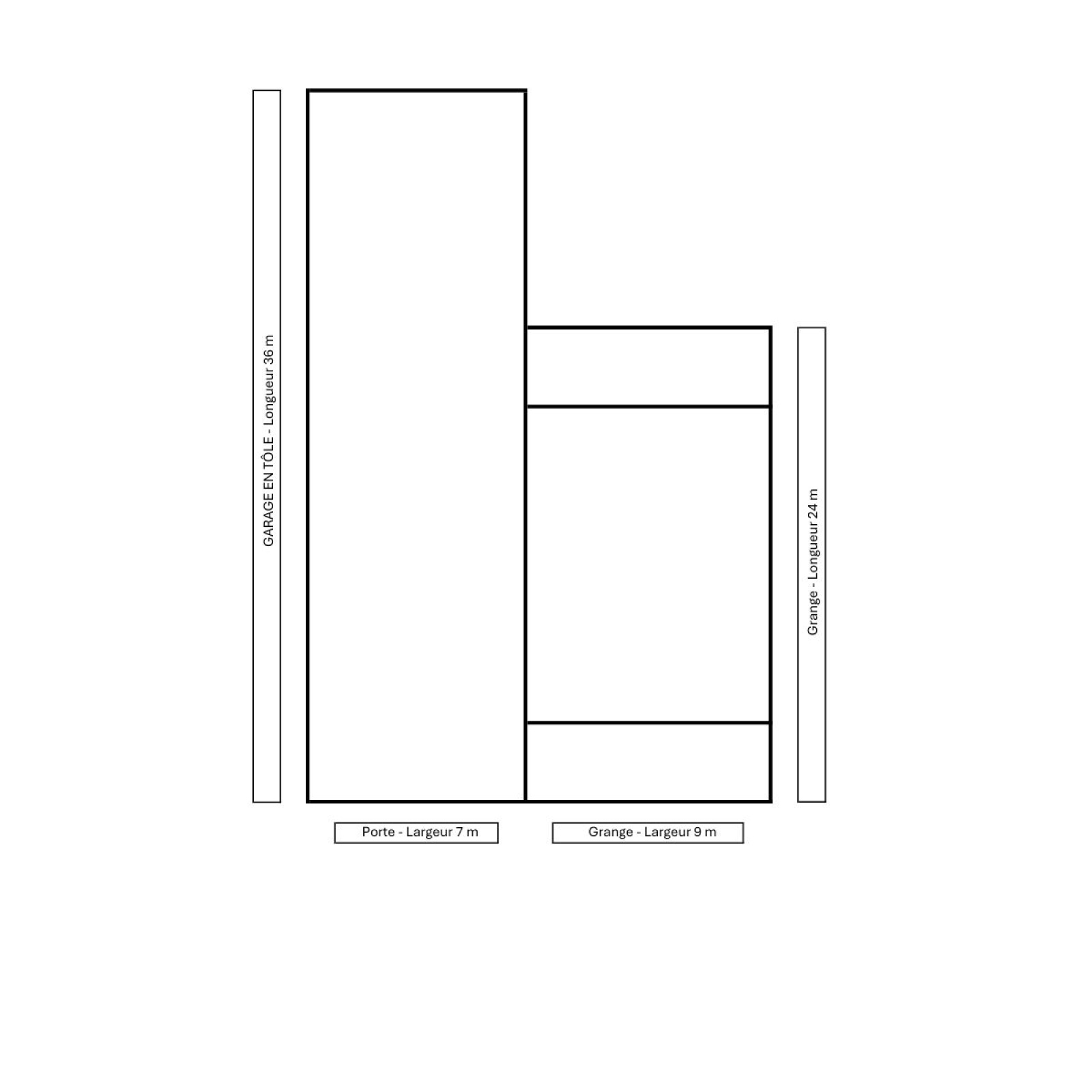
UNIQUE EN PAYS DE RETZ - La grange à piliers, simple charpente portée par des piliers robustes ronds ou carrés, offre sous une importante hauteur de toiture, un volume pour stocker et sécher les récoltes?».
Cette forme très ouverte est souvent adossée par des volumes plus petits utilisés pour le rangement.
A VENDRE - GRANGE A PILIER (ENVIRON 200 M² AU SOL) + GRAND GARAGE (ENVIRON 300 M² AU SOL) + PUITS sur Terrain non constructible de 4.500 m² environ
A VENDRE - VUE - CORPS DE FERME A RÉNOVER ET A RESTAURER - ENVIRON 500 M² + 4.500 M² DE TERRAIN NON CONSTRUCTIBLE
En pleine nature - zone naturelle boisée
Certificat d'urbanisme positif en date du 27 février 2025
Bornage Géomètre réalisé en mai 2025
Distribution eau de ville et EDF devant la maison - Prévoir raccordement EDF via un poteau ENEDIS à plus de 60 mètre) - Evacuation des eaux usées : mise en place d'une station micro-épuration
A VENDRE CORPS DE FERME AU PRIX DE : 130.000 euros HAI - Charge Acquéreurs - Soit 110.000 euros Prix Net Vendeur - Soit Forfait Exceptionnel Honoraires de 20.000 euros TTC - Contactez Christophe HUTTEAU au : 06.19.34.39.26

